Τοποθεσία:
Βρίσκεται στη Λακατάμεια, πολύ κοντά στο στάδιο Γ.Σ.Π. Σε καινούρια και ήσυχη περιοχή, εύκολα προσβάσιμη. Πολύ κοντά από το κέντρο της Λευκωσίας, και 3 λεπτά από τον αυτοκινητόδρομο.
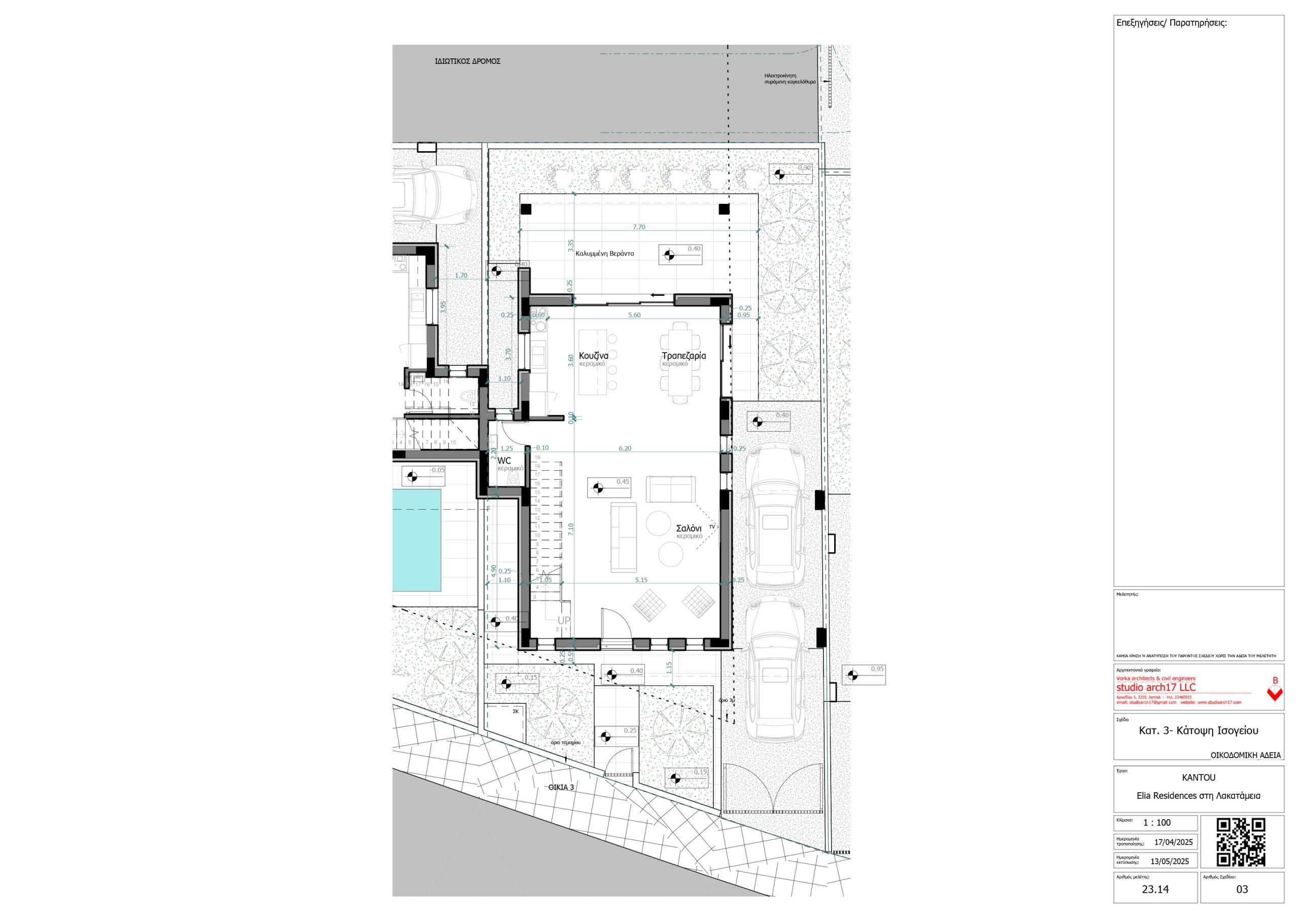
Δομή:
Η κατοικία 3 αποτελείται από τρία υπνοδωμάτια, 3 μπάνια (ensuite master bathroom) , καλυμμένος χώρος στάθμευσης , 154 τ.μ. εσωτερικοί χώροι, 233 τ.μ. εμβαδόν οικοπέδου.
Εγκαταστάσεις:
Κουζίνα επιλογής πελάτη, σύστημα συναγερμού, κάμερες ασφαλείας, θυροτηλεόραση, φωτοβολταϊκά. Προαιρετική επιλογή πελάτη: Υποδαπέδια θέρμανση νερού με heatpump, εγκατάσταση κλιματιστικών ψευδοροφής στο ισόγειο, εγκατάσταση κλιματιστικών split unit σε όλα τα δωμάτια.
Ενεργειακή Απόδοση:
Παρέχουμε και υποστηρίζουμε συστήματα ηλεκτρικής ενέργειας Net Metering και παραδίδουμε κατοικίες ενεργειακής απόδοσης Α και με εγγύηση 2 ετών.
ΠΕΡΙΓΡΑΦΗ
ΠΕΡΙΓΡΑΦΗ
Δομήσιμο Εμβαδό: 154 τ.μ.
Εμβαδό οικοπέδου: : 233 τ.μ.
Υπνοδωμάτια: 3
Μπάνια: 3
Εγγύηση: 2 Χρόνια
Ενεργειακή απόδοση: A
Σύστημα Ασφαλείας: Σύστημα συναγερμού | κάμερες ασφαλείας
Χώροι Στάθμευσης: 2
Ηλιακοί Θερμοσίφωνες: √
Φωτοβολταϊκά πάνελ: √
Κλείστε ραντεβού
Συμπληρώστε τα στοιχεία σας, για να κλείσετε ραντεβού για το δικό σας σπίτι!
Κλείστε ραντεβού
Συμπληρώστε τα στοιχεία σας, για να κλείσετε ραντεβού για το δικό σας σπίτι!



